PROYECTOS

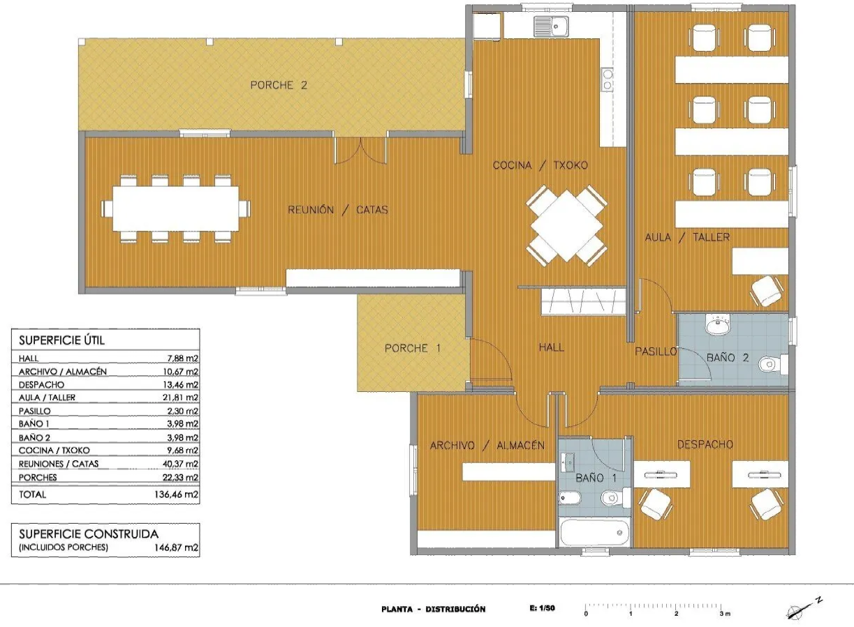
Obra: Pabellón auxiliar para una empresa - obra nueva - construcción industrializada
Lugar: barrio de Aginaga, Usurbil
Fases: Diseño + Anteproyecto
Información: pabellón auxiliar para una empresa: con módulos prefabricados ensamblados entre sí, para una ejecución rápida y controlada. En el interior se forman diferentes estancias, como la sala de reunión, la sala de formación, el comedor donde poder degustar los productos elaborados por la empresa, etc.
Estado: Finalizado - 2014




